50KG Þungbraut
50KG Heavy Rail er tegund af stálteinum sem er hönnuð til notkunar í þungum járnbrautum. "50KG" táknið gefur til kynna þyngd þess á metra, sem er um það bil 50 kíló.
GNEE Rail býður upp á hágæða 50KG Heavy Rail sem er í samræmi við iðnaðarstaðla og forskriftir. Þungu teinarnir okkar eru endingargóðir og áreiðanlegir, sem gera þær hentugar fyrir krefjandi járnbrautaumhverfi. Fyrir frekari upplýsingar um 50KG Heavy Rail okkar eða til að ræða möguleika á sérsniðnum skaltu ekki hika við að hafa samband við okkur.
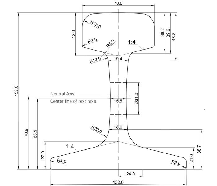
Forskrift
| gerð | þyngd (kg/m) | efni | lengd (m) |
| 50 kg | 51.514 | 50Mn/U71Mn | 12m/12.5m |
| járnbrautarhæð (mm) | botnbreidd (mm) | höfuðbreidd (mm) | vefþykkt (mm) |
| 152 | 132 | 70 | 15.5 |
Teikning

Stáljárnbrautarbirgir



maq per Qat: 50 kg þungar járnbrautir, Kína 50 kg þungar járnbrautir framleiðendur, birgjar, verksmiðja








